
-
From Our Gallery
Description
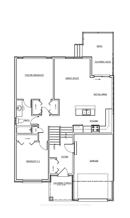
Built by Klemencic Homes, the Gala Model offers an appealing brick front and 1,015 sq ft of stylish and practical living space. This thoughtfully designed home features impressive contemporary standard finishes, allowing you to confidently purchase the home as presented. The excellent floor plan showcases an open concept main level with a modern kitchen that flows into a spacious great room, complete with patio doors leading to a finished deck and sodded backyard - perfect for relaxing or entertaining. The home includes two bedrooms on the main level, while the lower level offers the option to be professionally finished by the builder, adding a recreation room, two additional bedrooms, and a bathroom, providing flexible space for family, guests, or a home office. Ideally located in Trenton's desirable west end, this home is just minutes from Highway 401 and close to elementary and secondary schools, shopping plazas with restaurants, Tim Hortons, Walmart, medical and dental offices, and a variety of retail and service establishments. Includes a 7-Year Tarion Warranty. Home is currently under construction. A model home is available to view.
Location Description
Hillside Meadow Drive
Property Detail
- Community: Murray Ward
- Property Type: Owner/Residential Freehold
- Bedrooms: 2
- Bath: 2
- Garages: Attached
- Annual Property Taxes : $ 0
- sqft
Facts and Features
- Foundation Type: Poured Concrete
- Counstruction Material : Brick Front-Vinyl Siding
- Total Parking Space : 3
- Parking Type : Attached
Amenities
Listing Contracted With: RE/MAX QUINTE JOHN BARRY REALTY LTD.




