
-
From Our Gallery
Description
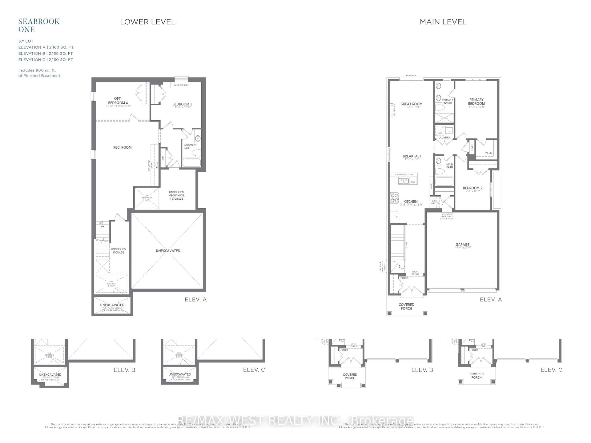
Exquisite 2+1-bedroom, 3-bathroom Double Car Garage Bungalow By Treasure Hill - Seabrook One Residence. *2160 sqft* including basement. ** First time buyer to save 5 percent GST on this new build product also!! ** **Finished basement direct from builder with 3rd bedroom and full 4-piece washroom, *Closing Fall 2026* **. Featuring 9'ft Main Floor Ceiling Heights, Smooth Main Floor Ceilings, Open Concept Great Room W/Kitchen And Breakfast, Electric Fireplace, Large Primary Bedroom W/Walk In Closet And Zen Inspired 4 Pc Ensuite, Oversized basement windows for ample natural light, 8'-6" Basement Ceiling Height W/3rd Bedroom (4th br and separate entrance optional), Rec Room and 4 pc Bath. ** Genius Package Valued at $20,000, Group 3 Vinyl Flooring Throughout Main Floor And Group 3 Quartz Countertops Throughout. These are selling quick, and at great prices! ... only a few left from 48 lots!!**
Location Description
Rudell Rd And King Ave W
Property Detail
- Community: Newcastle
- Property Type: Vacant/Residential Freehold
- Bedrooms: 3
- Bath: 3
- Garages: Built-In
- Annual Property Taxes : $ 0
- sqft
Facts and Features
- Foundation Type: Concrete
- Counstruction Material : Stone-Stucco (Plaster)
- Total Parking Space : 4
- Parking Type : Built-In
Amenities
Listing Contracted With: RE/MAX WEST REALTY INC.




