
-
From Our Gallery
Description
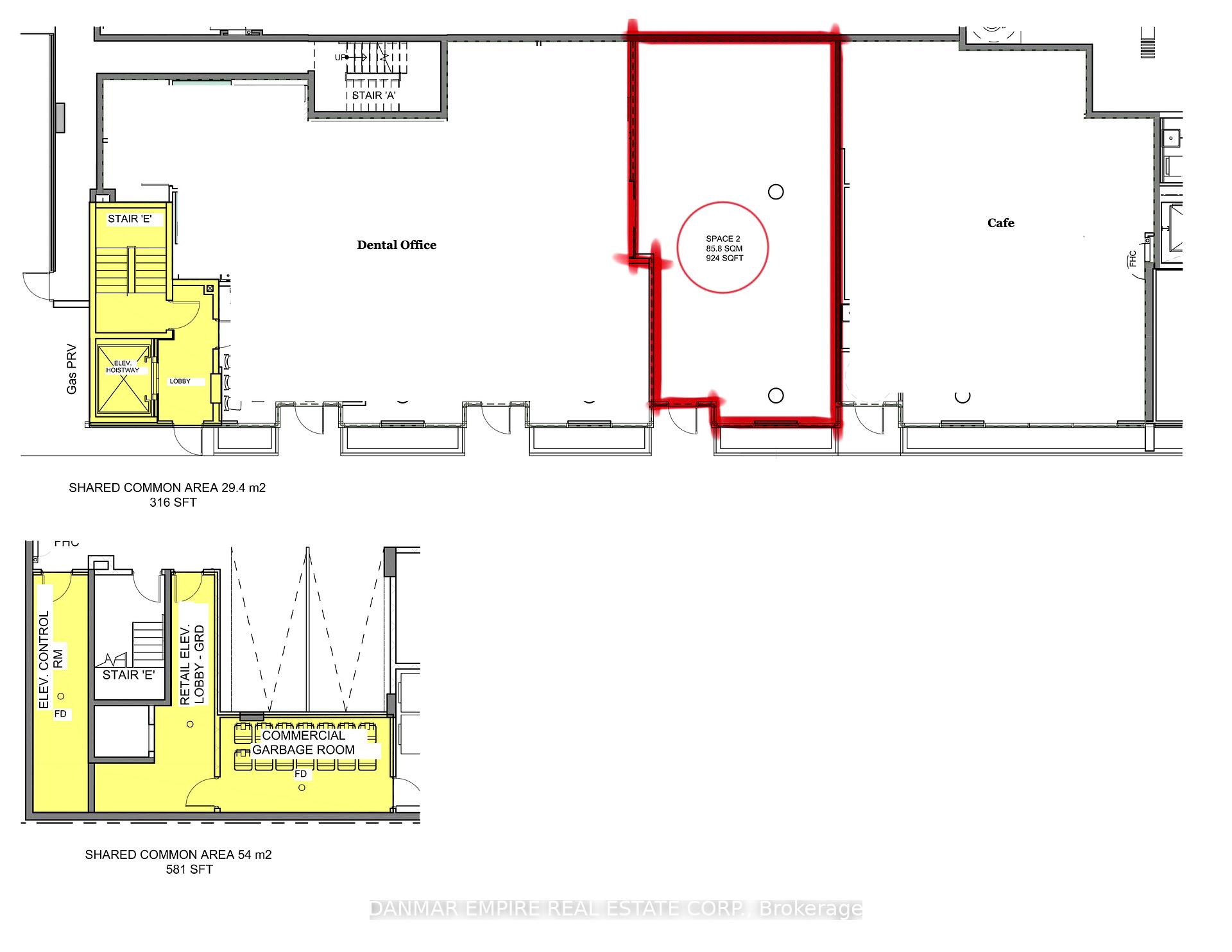
Prime opportunity to lease a brand new 925 sq ft main-floor retail or professional office space in a newly built mixed-use condominium at Bathurst and Sheppard. This bright, street-facing unit features floor-to-ceiling windows, excellent signage exposure, and direct access from Bathurst Street with a bus stop right in front of the unit. Delivered in shell condition, ready for tenant build-out to suit a wide range of uses including medical, wellness, retail, or professional services. Surrounded by established and growing residential density, this family-friendly area includes a new café and dentist already operating next door. Includes one designated underground parking space plus ample street parking nearby. Rent includes TMI-tenant pays only utilities. A rare opportunity to secure high-visibility space in one of North York's most desirable and transit-accessible corridors.
Location Description
Bathurst and Sheppard Ave W
Property Detail
- Community: Bathurst Manor
- Property Type: Vacant/Commercial
- Garages: Underground
- Annual Property Taxes : $ 0
- sqft
Facts and Features
- Parking Type : Underground
Amenities
Listing Contracted With: DANMAR EMPIRE REAL ESTATE CORP.






